شرکت شاخص صنعت نوین اجرا، با تجارب ممتد و همکاران مجرب و گروه های اجرائی پرسابقه، آماده است تا خدمات خود را در طراحی ساخت و اجرای تصفیه خانه های واحد های صنعتی، تصفیه خانه های بهداشتی و شهری و نیز مشاوره و ارائه ی روش های بهبود انواع تصفیه خانه های فاضلاب و تعمیر و سرویس و نگهداری مستمر انواع تصفیه خانه های فاضلاب ارائه نماید.
الف:طراحی و اجرای سیستم های تصفیه فاضلاب
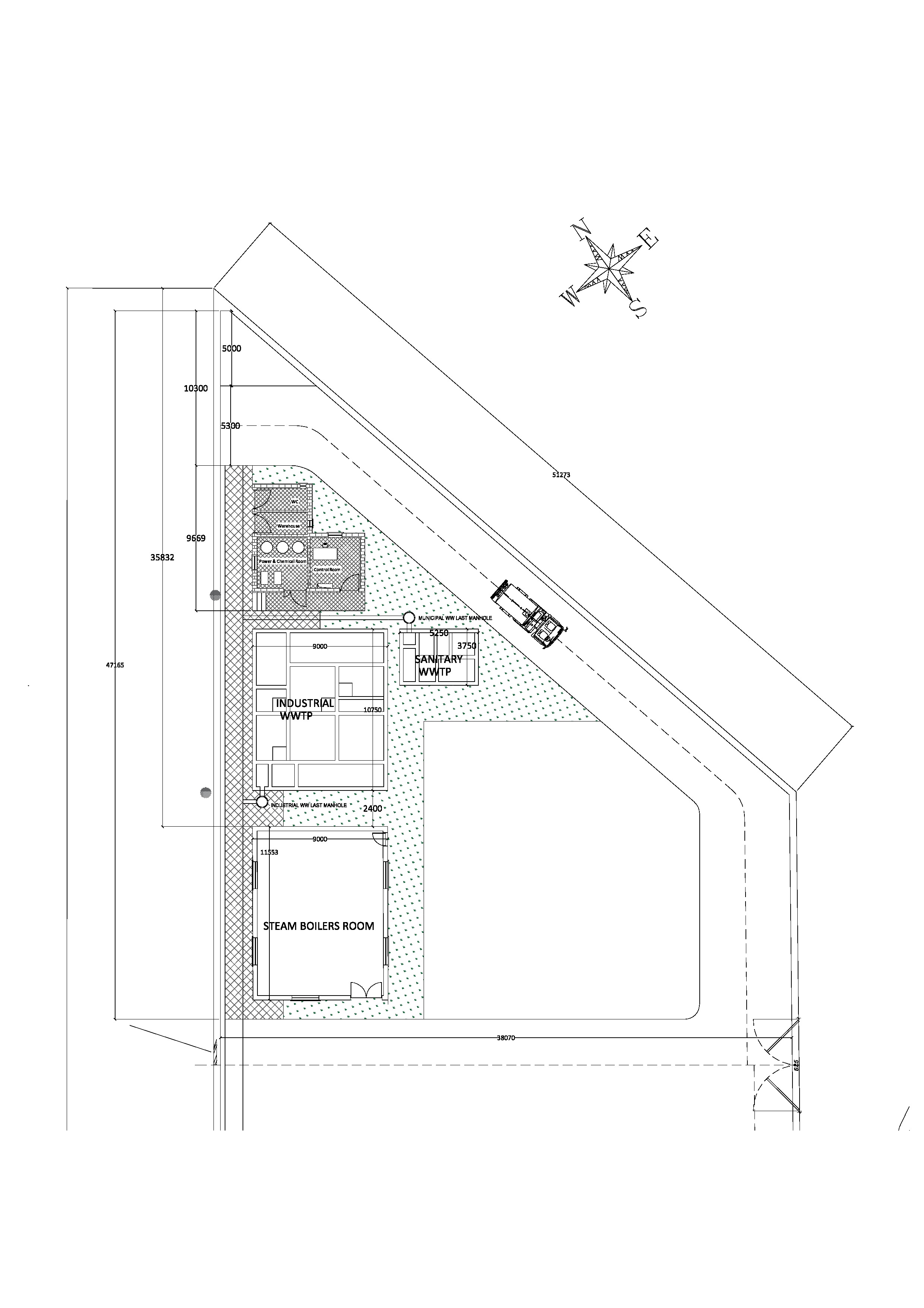
مراحل گام به گام شروع پروژه:
1_اولین مرحله طراحی کلیات یک سیستم تصفیه فاضلاب با توجه به نوع و ظرفیت فاضلاب انجام میگردد.

2_در گام بعدی و پس از بررسی میدانی نسبت به تهیه نقشه جانمایی سایت تصفیه خانه و سپس طراحی جزئیات اقدام میگردد.
3_پس از مشخص شدن جزئیات طرح نسبت به اجرا اقدام میگردد
به طور مثال در مورد ساخت و اجرای تصفیه خانه از نوع بتنی مراحل کار شامل:خاک برداری،آرماتور بندی و بتن ریزی خواهد بود.
![]() ![]() | ![]() ![]() | ![]() ![]() |
4-مرحله بهره برداری
ب:سرویس و نگهداری در سیستم های تصفیه فاضلاب:
مجموعه اقداماتی که به طور معمول برای سرویس و نگهداری انواع تصفیه خانه ها انجام میگردد شامل:شست و شو و ضدعفونی کردن محوطه،سطح روبی واحد ته نشینی در منطقه ایسا و آرام واحد، کنترل وتنظیم میزان لجن برگشتی به واحد های هوادهی،کنترل میزان ورودی سیال خام به سیستم،پاکسازی کانال مقسم(شرق واحد های هوادهی)و سطح روبی حوضچه تجمع خروجی هواده ها و......
![]() | ![]() ![]() |

ساخت دریچه منهول در شبکه آبرسانی
**امروزه از فرآیند اسمز معکوس(RO) به عنوان یک فرآیند جداسازي در بسیاري از صنایع تولید آب شیرین ،تصفیه پسابها ، صنایع غذایی و داروسازي و ... استفاده میشود. استفاده از این روش با تولید غشاهاي جدید که میتوانستند در محدوده وسیعی از pH و دماهاي مختلف عمل کنند و نسبت به بسیاري از مواد شیمیایی و بیولوژیکی موجود در آب مقاومت داشته باشند توسعه چشمگیري یافته است. روشRO نسبت به بسیاري از فرآیندهاي جداسازي دیگر، همانند تقطیر، استخراج، تعویض یونی و جذب داراي مزایاي فراوانی میباشد. در این روش به هیچگونه تغییرات فازي شدید انرژي و یا استفاده از محلولهاي گرانقیمت جاذب نیازي نیست .طراحی و عملکرد این روش در مقایسه با بسیاري از روشهاي قدیمی جداسازي راحتتر میباشد.
در این روش آب خام پس از یک سري مراحل پیش تصفیه، به سمت یک غشاء نیمه تراوا پمپ میشود و قسمتی از آن از میان غشاء عبور کرده و به این ترتیب در باقیمانده خوراك غلظت نمکها افزایش خواهد یافت. در همین زمان قسمتی از این آب بدون عبور از میان غشاء از سیستم خارج میشود(به دلیل افزایش فشار اسمزي در پشت غشاء، فشار عملیاتی اعمالی از طرف پمپها براي عبور آب از میان غشاء کافی نیست و در صورت عدم خروج آب شور از سیستم، آب تصفیه شده عبوري از میان غشاء به عقب برگشت خواهد کرد)، که مقدار این آب با توجه به کیفیت آب ورودي و نوع غشاء بین 20% تا 70 % متغیر است.
مهمترین فاکتور موثر بر هزینههاي تمام شده یک سیستم RO میزان درصد بازیابی میباشد. براي یک سیستم مشخص، اندازه، تجهیزات فرآیندي همانند تجهیزات استفاده شده در سیستم پیش تصفیه، مخازن ذخیره، پمپها، فیلترها و سیستمهاي تزریق مواد شیمیایی تابعی از دبی آب خام میباشد. با افزایش درصد بازیابی و کاهش دبی آب ورودي، اندازه تمام این تجهیزات کاهش یافته و بنابراین هزینههاي سرمایهگذاري و عملیاتی سیستم نیز کاهش خواهد یافت.

سیستم تصفیه آب خام(Ro)








